krish carbon @ coimbatore

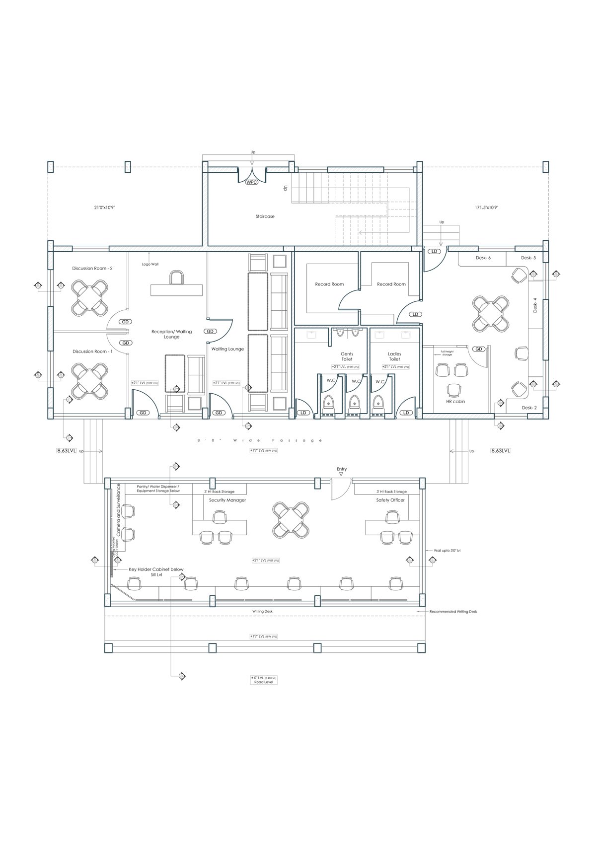
The Master Plan compromises of Security Office and Time Office adding to the manufacturing facility unit for KrishCarbon located in Coimbatore, Tamil Nadu. Initially the industrial relics were taken into consideration and design is processed in an inventive way by configuring the spaces with landscape to create an ideal workplace for the employees and a delectable ambience for anyone who commutes the building.

Location: Eldams Road, Chennai
Client: M/S Krishcarbon
Area: 425000 SQFT
Year: 2020
Status: On Going

Project Team
Design Partner: Ar.Lokeshwari
Execution Partner: Redbricks
Electrical: Mercy Electrics
Lighting: Philips
Painting: Asian paints

Concept:
Security Office includes a series of different security check points to segregate the respective to the entrants of the building. Time Office is categorized into Public, Private and Semi-public spaces where the reception plays the vital role which guides all the entrants leading to different spaces within the office.

A2
A5
Time Office A.Denoiser
Training View D.Denoiser
Layout1
Layout1
Layout1
Layout1
Layout1